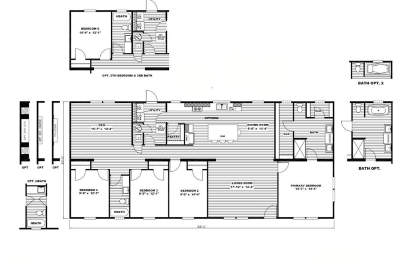
NEW ARRIVAL! Lot 321 | 5 Bd / 3 BA Clayton Showhome at Cedar Village in Carrollton, GA
Looking for a home that combines space, style, and affordability? Lot 321 delivers it all. The Locklear by Clayton Homes is a brand-new 2025 double-wide, measuring 32′ x 72′ with an impressive 2,176 square feet of living space. This stunning model was a featured SECO Conference showhome in Atlanta, and now it can be yours at Cedar Village.
Home Highlights
-
5 bedrooms, 3 baths – ideal for large families or anyone who wants extra room
-
Split floorplan – master suite on one side, secondary bedrooms on the other for privacy
-
Large walk-in master closet with natural light
-
Garden tub in the master bath for a touch of luxury
-
Open concept living and dining areas designed for modern lifestyles
-
Walk-in kitchen pantry plus abundant storage throughout
-
Energy-efficient design and quality construction from Clayton Homes
Every detail has been designed with convenience and comfort in mind. From the oversized master suite to the family-friendly common areas, this home is built for everyday living and special gatherings alike. And… a spacious front porch is currently under construction on-site, providing the perfect spot to enjoy the crisp fall air!
Community Living at Cedar Village
Set on 44 peaceful acres in Carrollton, Cedar Village offers the best of both worlds: quiet country living with easy access to city amenities. You’ll enjoy abundant green space, paved streets, and a private lake right in the community. Families love the location, within close distance of Central Elementary, Central Middle, and Central High. You’ll also find higher education at the University of West Georgia and West Georgia Technical College just minutes away, plus employment opportunities at Southwire, Tanner Medical Center, and more.
Why This Home Won’t Last
Affordable housing doesn’t have to mean sacrificing space — and Lot 321 proves it. With our unique Lease-Option program, homeownership has never been more accessible. This home will be available soon, and demand for spacious 5-bedroom models is high.
📞 Don’t delay — call today to schedule a tour or join the waitlist for Lot 321 at Cedar Village!
Property Features
- Designated Laundry Room
- Double Vanity in Master
- Durable Vinyl Flooring in Common Areas
- Garden Tub in Master
- Large Kitchen Island
- Large Walk-In Master Closet with Natural Lighting
- Open Floor Plan
- Private Master Suite
- Split Floorplan
- Walk-In Kitchen Pantry




